Trilocale in vendita

Peschiera Del Garda, Via Sammicheli
€ 450.000
Prezzo aggiornato
3 locali 3 locali
96 Mq 96 Mq
2 bagni 2 bagni

Trilocale in vendita

Peschiera Del Garda, Via Sammicheli

Descrizione annuncio

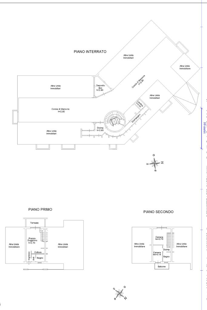
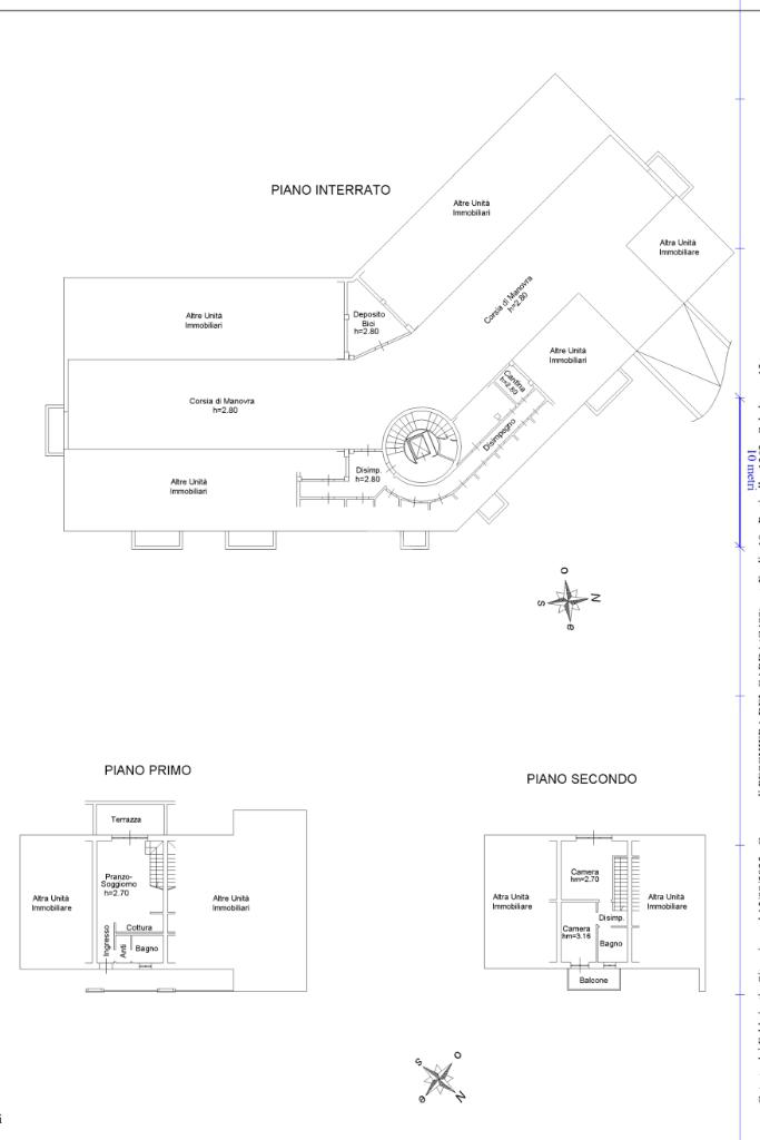
Peschiera del Garda - In contesto residenziale con piscina, a poche centinaia di metri dal lago e dal centro, proponiamo in vendita un appartamento trilocale che si sviluppa su due livelli, piano primo e piano secondo.

Al primo piano, l’appartamento è composto da: ingresso, soggiorno con cucina a vista, bagno finestrato con doccia e terrazzo che si affaccia sulla piscina condominiale.

Tramite una scala interna, si accede al piano secondo, composto da: due camere da letto, di cui una matrimoniale con cabina armadio, da cui si vede uno scorcio di vista lago, una cameretta balconata e infine un bagno finestrato con doccia.

Il residence si presenta in ottime condizioni, curato nei dettagli. È dotato di un montacarichi che collega tutti i piani dell'edificio. Completano la proprietà una cantina di pertinenza e un'ampia autorimessa singola.

Ottima opportunità per chi desidera una soluzione in una zona tranquilla, lontano dalle vie di comunicazione principali e, al tempo stesso, vicina al lago, al centro di Peschiera e a tutti i servizi.

Mostra tutto

Nelle vicinanze

Trasporto pubblico Trasporto pubblico
stazione di Peschiera del Garda
stazione di Peschiera del Garda
710 m
Monorotaia
Monorotaia
1,5 Km
Peschiera - Bivio Stazione F.S.
Peschiera - Bivio Stazione F.S.
420 m
Peschiera - Bivio Bar Luna
Peschiera - Bivio Bar Luna
480 m
Peschiera del Garda
700 m
Ricariche auto elettriche Ricariche auto elettriche
Lidl Peschiera del Garda
1,8 Km
Gardaland Hotel
2,1 Km
Lidl Peschiera del Garda BIS
3,0 Km
Scuole Scuole
Scuola secondaria Felice Chiarle
290 m
scuola secondaria statale Felice Chiarle
310 m
Scuola Elementare
2,6 Km
Scuola materna Don Giuseppe Manganotti
2,7 Km
Farmacia Farmacia
Farmacia Dr. Ruzza
350 m
Dottor Giubertoni
1,1 Km
Farmacia Dr. Giubertoni
1,1 Km
Farmacia Dottor Piazza
1,7 Km
Farmacia Dr.ssa Elisabetta Corna
2,3 Km
Ospedali Ospedali
Casa di Cura Dottor Pederzoli
610 m
Presidio Medico
1,9 Km
Supermercati Supermercati
Penny
550 m
Migros
610 m
Famila Superstore
650 m
Famila
660 m
Sigra Market
1,0 Km
Negozi Negozi
Pull Love
730 m
Masterplan
740 m
Mr. Anthony
750 m
Ai Capitani
770 m
Filù
770 m
Bar Bar
bar sole
460 m
Bar
620 m
Bar Stazione
710 m
Snack Bar Voltoni
760 m
extro'
1,4 Km
Ristoranti Ristoranti
La Vela Blu
260 m
Albergo Trattoria Fioravante
270 m
La Creperie
280 m
hotel acquadolce
280 m
La Carbonaia
290 m
Mostra tutto

Caratteristiche

Rif.:
61110884
Piano:
1 di 3 con ascensore (Piano basso)
Box:
1
Balconi:
1
Terrazzi:
1
Camere da letto:
2
Mostra tutto
Prezzo Prezzo
€ 450.000
Rata mutuo Rata mutuo
€ 2.124 / mese
Spese annue Spese annue
€ 2.500
Proponi il tuo prezzoProponi il tuo prezzo

Classe Energetica

D
D
D
D
D
D
D
D
D
EP invernale del fabbricato:
EP estiva del fabbricato:
Anno di costruzione:
2007
Riscaldamento:
Autonomo
Tipo impianto:
A radiatori
Tipo alimentazione:
Metano

Prezzo ridotto di €1 (6%%)

Ti interessa visionare l'immobile?

Fissa un appuntamento  Fissa un appuntamento

Richiedi informazioni

Clicca su Leggi per aprire l'informativa
* Questi campi sono obbligatori

Calcola il tuo mutuo

Semplice e senza impegno
Anticipo

( % )
Mutuo

( % )

pochi semplici passi

inserisci i tuoi dati
Questionario completato
Grazie per aver richiesto un appuntamento senza impegno con un nostro Consulente del Credito e Assicurativo.

Hai inserito correttamente tutti i dati necessari e a breve riceverai una e-mail con un link da convalidare per inviare i tuoi dati.
Affiliato
Garda Domus Srl
Viale Della Repubblica, 1 37019 Peschiera Del Garda (VR)

Il nostro staff


  • Riccardo Saetti
    Affiliato

  • Laura Genevini
    Coordinatrice

  • Alessio Pinza
    Collaboratore
Viale Della Repubblica, 1 37019 Peschiera Del Garda (VR)
Zona: Lago di Garda - Peschiera del Garda - San Benedetto di Lugana
Mostra su mappa
Orari: dal lunedì al venerdì l'ufficio osserva il seguente orario: mattina 9.00 - 13.00, pomeriggio 14.30 -19.00.Sabato mattina 09.00 - 13.00, pomeriggio 14.30-18.00. Eventuali visite di domenica, solo su appuntamento.
Affiliato
Garda Domus Srl
Viale Della Repubblica, 1 37019 Peschiera Del Garda (VR)

2025 Tecnocasa Franchising S.p.A. - P. IVA 08365160152 - Via Monte Bianco 60/A 20089 Rozzano (MI). Ogni agenzia ha un proprio titolare ed è autonoma. Privacy policy | Policy utilizzo | Cookie policy