Bifamiliare in vendita

Peschiera Del Garda, Via Facciotti - Boschetti
€ 790.000
5 locali 5 locali
240 Mq 240 Mq
3 bagni 3 bagni

Bifamiliare in vendita

Peschiera Del Garda, Via Facciotti - Boschetti

Descrizione annuncio

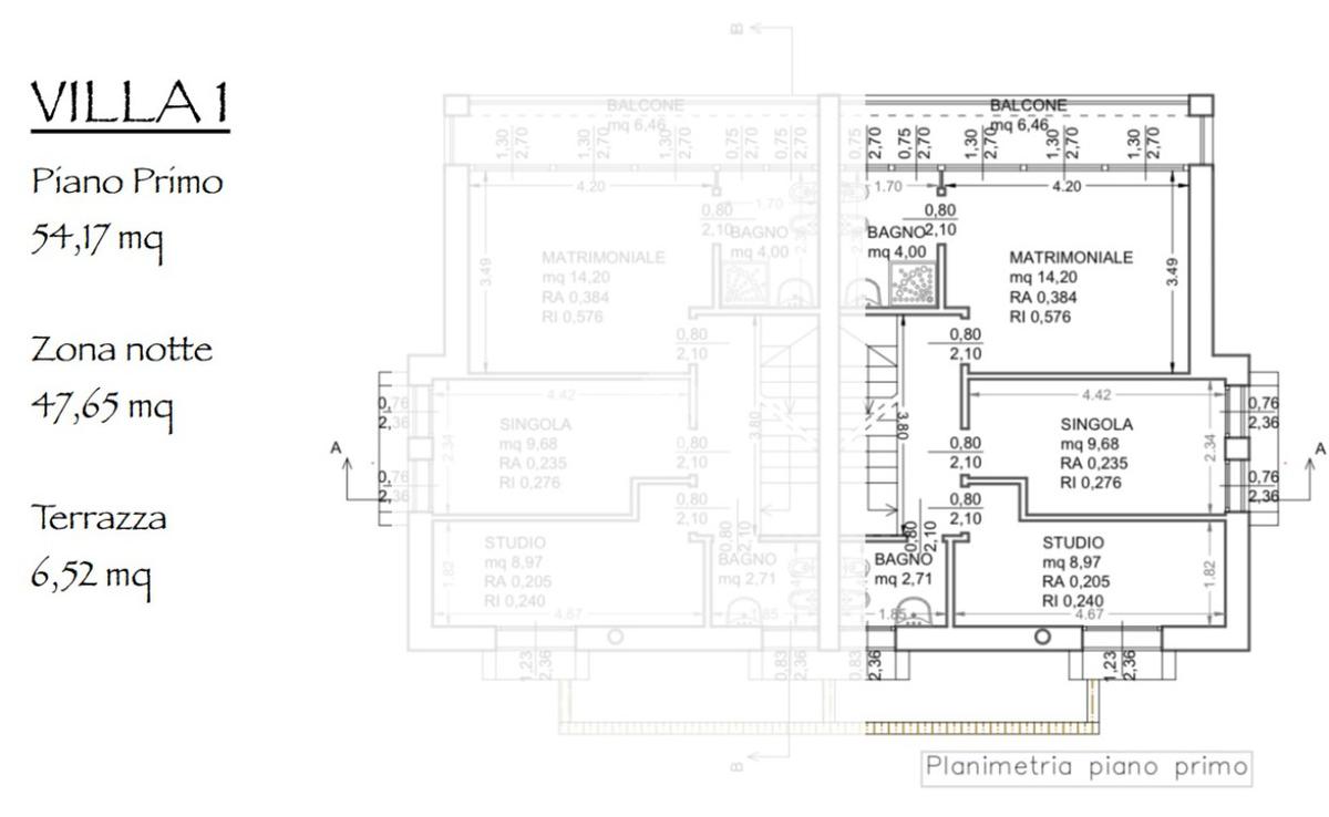
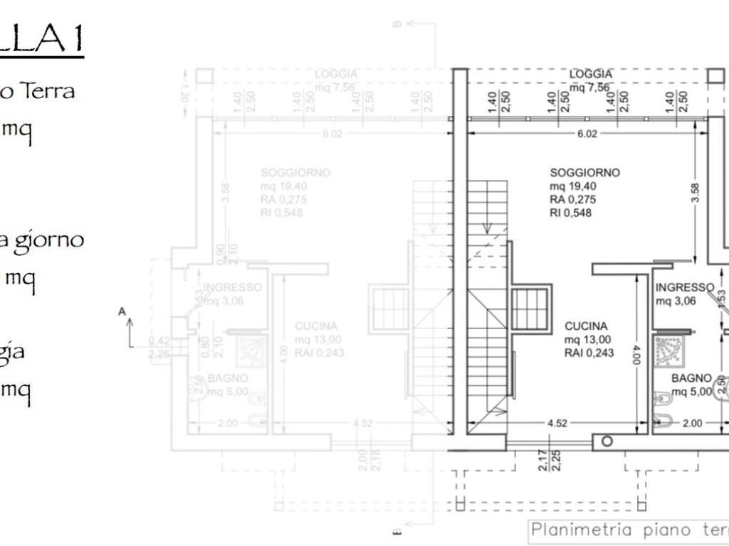
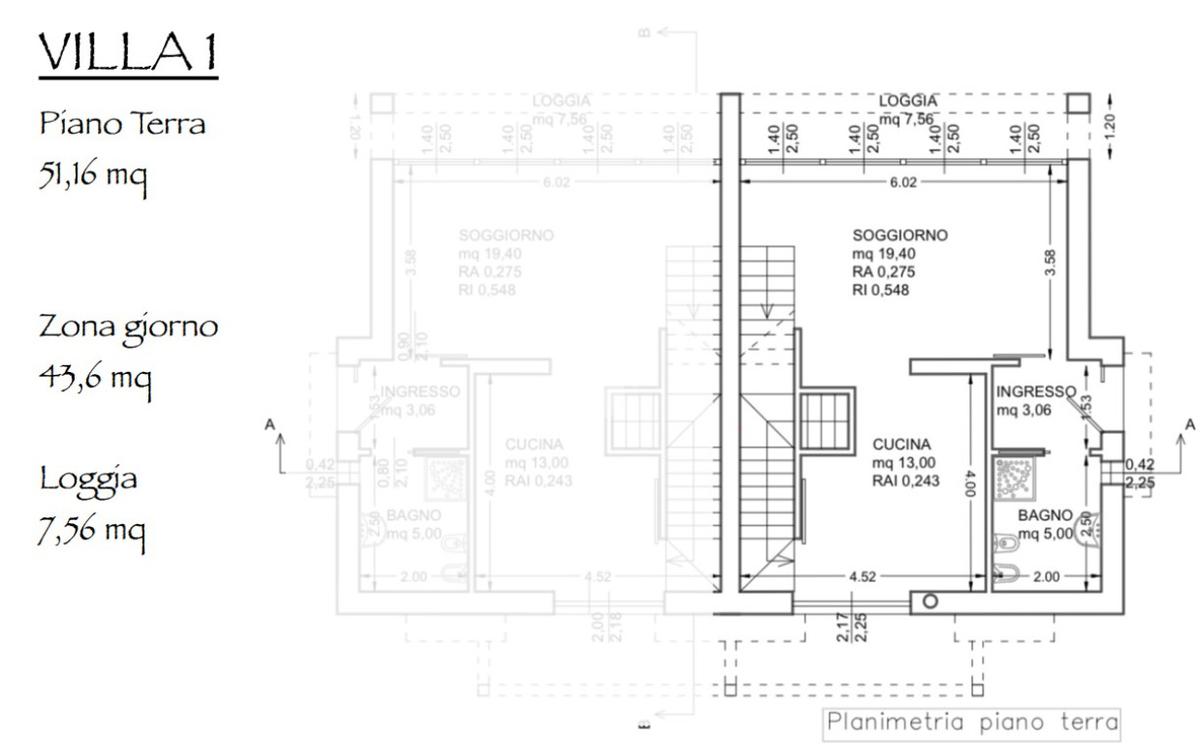
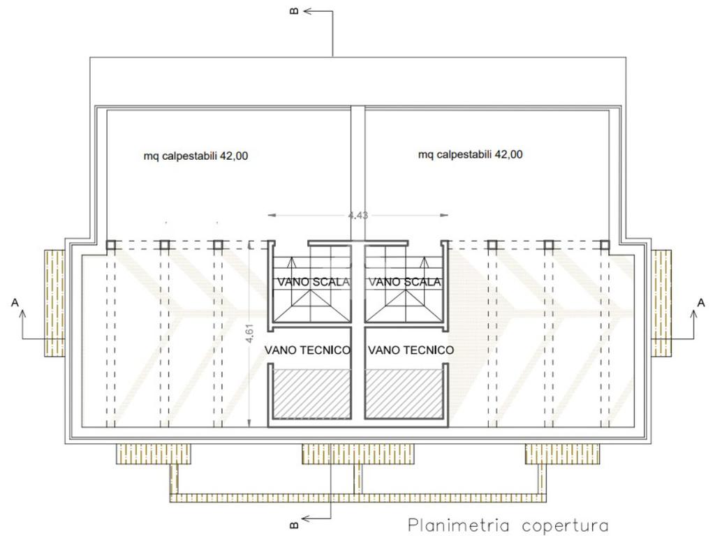
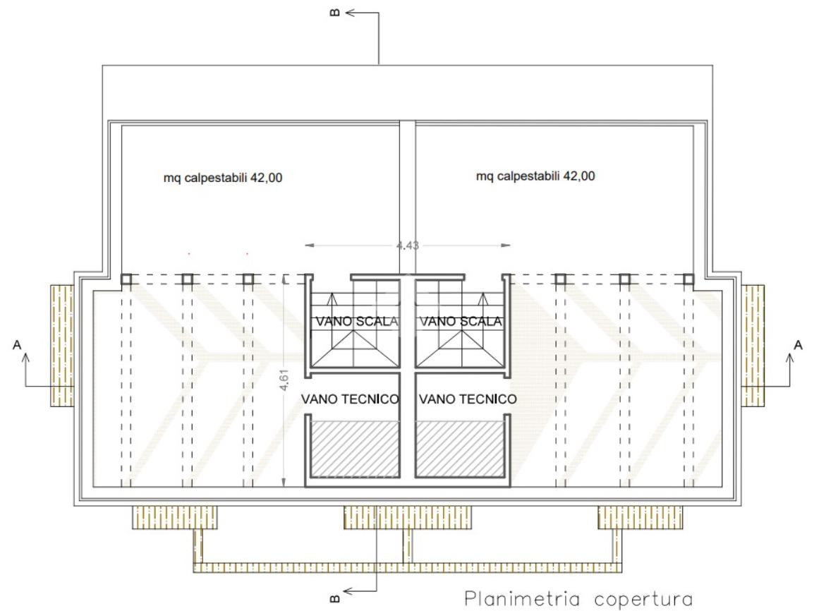
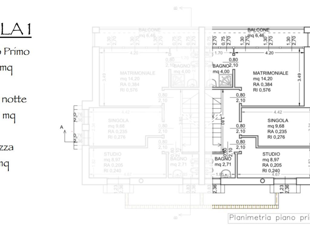
Peschiera del Garda – In contesto tranquillo proponiamo in vendita un’elegante porzione di villa bifamiliare con vista lago disposta su due livelli oltre ad interrato. La villa è in fase di completamento e si trova in posizione collinare, dalla quale si possono raggiungere in pochi minuti i parcheggi del centro, il lago e principali servizi ed attività del paese. La costruzione offre elevati standard a livello di qualità dei materiali e di risparmio energetico. Al piano terra, dotato di servizio, l’ingresso ci conduce nel luminoso soggiorno, collegato alla loggia e alla cucina a vista, dotata a sua volta di porta-finestra che permette di uscire sul portico esterno. La villa è circondata su due lati da un piacevole giardino privato che offre momenti di relax senza rinunciare alla privacy. Salendo al piano superiore, ci troviamo nel corridoio che conduce ad una comoda camera matrimoniale con bagno padronale e con un piacevole balcone, ad altre due stanze e ad un ulteriore servizio. La scala porta poi alla terrazza di oltre quaranta metri quadrati presente al livello della copertura piana dell’edificio, dove è presente il vano tecnico. L’interrato è composto da un doppio locale di circa cinquanta metri quadrati totali, nel quale si possono creare spazi per i propri interessi personali ed hobbies e per momenti conviviali. Sono presenti due posti auto di ampie dimensioni, che consentono di posteggiare comodamente due automobili affiancate. La posizione dell’immobile offre la possibilità di godere di una meravigliosa vista lago, ulteriore plus di una villa bifamiliare unica nel suo genere per posizione e utilizzo degli spazi.

Mostra tutto

Nelle vicinanze

Trasporto pubblico Trasporto pubblico
Trasporto pubblico
1,2 Km
Dolci
Dolci
2,0 Km
Ricariche auto elettriche Ricariche auto elettriche
Relais Villa Belvedere Sirmione
1,8 Km
Lidl Peschiera del Garda
2,2 Km
Scuole Scuole
Scuole
400 m
scuola primaria Ponti sul Mincio
2,2 Km
Scuola Elementare
2,6 Km
Farmacia Farmacia
Farmacia Dottor Piazza
2,3 Km
Cappellari Dr Elvira
2,3 Km
Parafarmacia Erbasan
2,6 Km
Farmacia Dr. Giubertoni
2,9 Km
Dottor Giubertoni
2,9 Km
Supermercati Supermercati
Conad
2,2 Km
Lidl
2,2 Km
Sigra Market
3,0 Km
Negozi Negozi
Alimentari
710 m
BLUGARDA
2,1 Km
Panificio Ceresa
2,5 Km
65 Style Boutique
2,5 Km
Negozi
2,6 Km
Bar Bar
Bar Motta
2,4 Km
Cavalli Zaira & figlio
2,4 Km
Burba Bar
2,6 Km
Life Club 24
3,0 Km
Ristoranti Ristoranti
Sapori in cantina
610 m
Locanda del Contrabbandiere
1,1 Km
Ristorante Ardea Purpurea - Le Ali del Frassino
1,5 Km
Al Santuario
1,5 Km
Ristorante Frassino
1,6 Km
Mostra tutto

Caratteristiche

Rif.:
61176979
Piano:
Su più livelli di 3
Totale piani:
3
Box:
1
Posti auto:
2
Balconi:
1
Mostra tutto
Prezzo Prezzo
€ 790.000
Rata mutuo Rata mutuo
€ 3.744 / mese
Spese annue Spese annue
€ 0
Proponi il tuo prezzoProponi il tuo prezzo
Immobile valutato con T·Valuta

Classe Energetica

A4
A4
A4
A4
A4
A4
A4
A4
A4
EP invernale del fabbricato:
EP estiva del fabbricato:
Anno di costruzione:
2026
Riscaldamento:
Autonomo
Tipo impianto:
A pavimento
Tipo alimentazione:
Metano

Ti interessa visionare l'immobile?

Fissa un appuntamento  Fissa un appuntamento

Richiedi informazioni

Clicca su Leggi per aprire l'informativa
* Questi campi sono obbligatori

Calcola il tuo mutuo

Semplice e senza impegno
Anticipo

( % )
Mutuo

( % )

pochi semplici passi

inserisci i tuoi dati
Questionario completato
Grazie per aver richiesto un appuntamento senza impegno con un nostro Consulente del Credito e Assicurativo.

Hai inserito correttamente tutti i dati necessari e a breve riceverai una e-mail con un link da convalidare per inviare i tuoi dati.
Affiliato
Garda Domus Srl
Viale Della Repubblica, 1 37019 Peschiera Del Garda (VR)

Il nostro staff


  • Riccardo Saetti
    Affiliato

  • Laura Genevini
    Coordinatrice

  • Alessio Pinza
    Collaboratore
Viale Della Repubblica, 1 37019 Peschiera Del Garda (VR)
Zona: Lago di Garda - Peschiera del Garda - San Benedetto di Lugana
Mostra su mappa
Orari: dal lunedì al venerdì l'ufficio osserva il seguente orario: mattina 9.00 - 13.00, pomeriggio 14.30 -19.00.Sabato mattina 09.00 - 13.00, pomeriggio 14.30-18.00. Eventuali visite di domenica, solo su appuntamento.
Affiliato
Garda Domus Srl
Viale Della Repubblica, 1 37019 Peschiera Del Garda (VR)

2026 Tecnocasa Franchising S.p.A. - P. IVA 08365160152 - Via Monte Bianco 60/A 20089 Rozzano (MI). Ogni agenzia ha un proprio titolare ed è autonoma. Privacy policy | Policy utilizzo | Cookie policy